29
more photos
Cantiere Delle Marche / 42.61 m / 2024
/ from €192,001 p/week + expenses
/ from €192,001 p/week + expenses
42.61 m /
2024 /
United States /
from €192,001 p/week + expenses
Description
Location and rates
PRICE SUMMER SEASON
from €192,001 p/week + expenses
LOCATION SUMMER
Italy, Monaco, French Riviera
PRICE WINTER SEASON
from €192,001 p/week + expenses
LOCATION WINTER
Bahamas, British Virgin Islands
CABINS
6+5
GUESTS
12
CREW
10
MASTER CABIN
N/A
Specification
TENDERS AND TOYS
x1
Inflatables
x1
Waterskis
x2
Kayaks
x2
Tender
x1
Wakeboards
x1
Snorkling gear
x1
Jetskis
x1
Floating dock
x2
eFoils
x1
Gym
x1
Beach club
x1
Jacuzzi
- 1 x Inflatables
- 1 x Waterskis
- 2 x Kayaks
- 2 x Tender
- 1 x Wakeboards
- 1 x Snorkling gear
- 1 x Jetskis
- 1 x Floating dock
- 2 x eFoils
- 1 x Gym
- 1 x Beach club
- 1 x Jacuzzi
Gallery
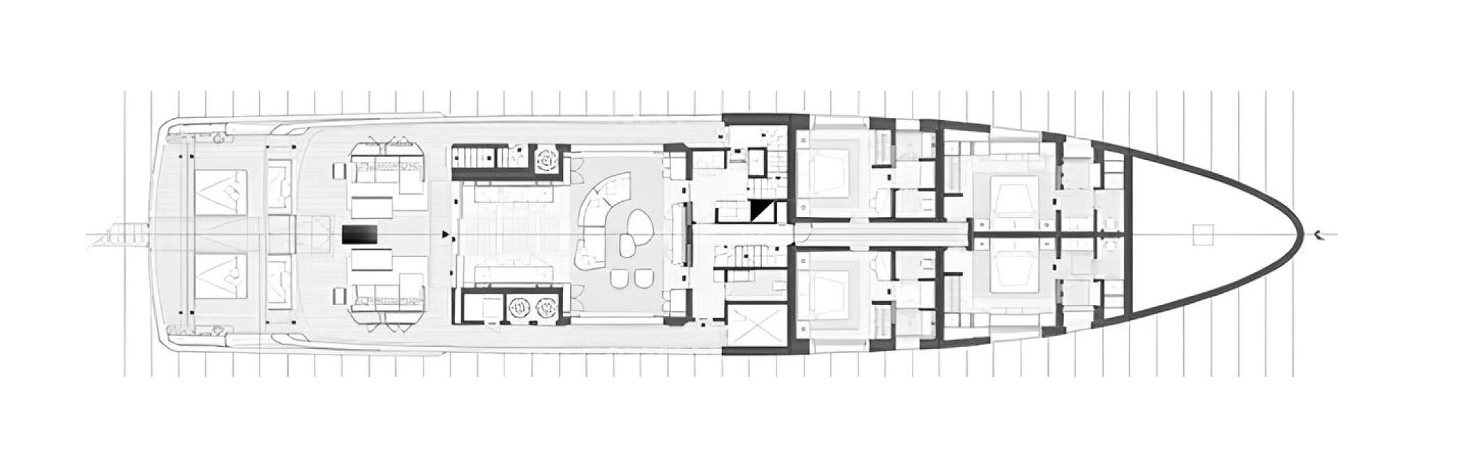
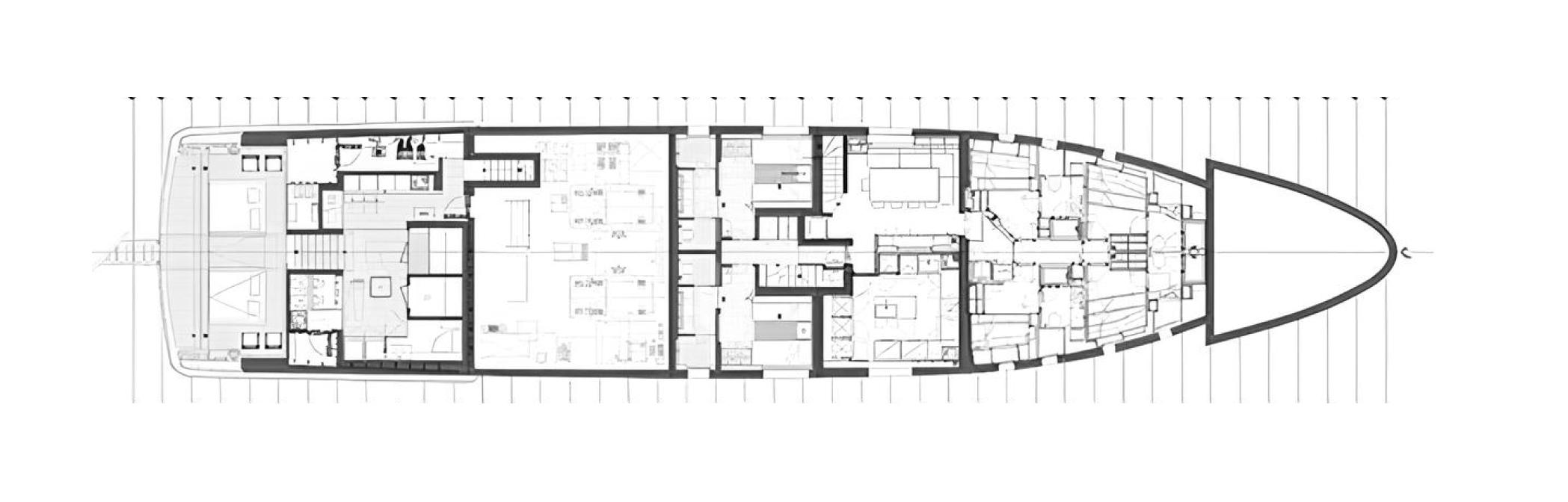
General Arrangement
YOU MAY ALSO LIKE
LIND
Shipyard
Amels
Length
52.3 m
Built
2010
Location
Spain
Asking Price
€285,000 p/week + expenses
LIV LOVE
Shipyard
Benetti
Length
40.8 m
Built
2025
Location
Bahamas
Asking Price
€235,000 p/week + expenses
MANATEA
Shipyard
Peri Yachts
Length
28.65 m
Built
2008
Location
France
Asking Price
€47,000 p/week + expenses
ENQUIRE NAU
1
/ 29
- Exterior (13)
- Interior (16)