Website version
EN RU
15
more photos
Tankoa / 45 m / 2028 / Italy
/ Price on application
Description
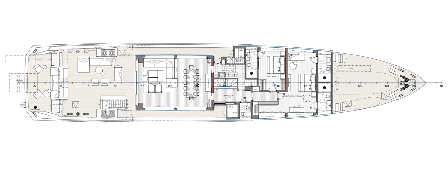
A four-deck yacht from the Italian shipyard Tankoa with exterior design by Francesco Paszkowski and interior by Giorgio Cassetta. Strict straight lines and maximum functionality, as well as thoughtful technical solutions are the key principles of this model.

Powertrain. The project provides two solutions: a classic version with MAN diesel engines and direct shaft and a hybrid version with diesel engines, electric motors and generators with increased power. The hybrid version allows a significant reduction in fuel consumption and has a longer cruising range (4,000 mm - transatlantic range).

Layouts. In general, the yacht reflects all current market trends, but a number of features deserve attention. There is a layout with two cabins on the main deck (master and VIP) and a galley on the lower deck. Combining these two cabins into one allowed the project to be built with an owner's suite, which is also in demand when it comes to long cruises and passages. A storage area (with crane) for a large tender and jet ski is located forward, while seabobs, kayaks and other gear are stored aft under the swim platform.

More and more customers want the ultimate open beach club that can be fully integrated into a single cockpit and saloon space, instead of the standard cockpit solution behind the main saloon. On the T450 there is such an optional aft layout (on request).
Specification
SHIPYARD , MODEL
Tankoa T450
DELIVERY AT THE SHIPYARD
2028
LENGTH
45 m
WATERLINE LENGTH
N/A
HULL CONFIGURATION
DISPLACEMENT
BEAM
8 m
RANGE
4000
DRAFT
2 m
GROSS TONNAGE
440 GT
YACHT CLASS
LLOYDS + MCA
CABINS
6+5
MASTER CABIN
MAIN DECK
GUESTS
12
BERTHS
12+9
CREW
9
HEADS
10+6
EXTERIOR DESIGN
FRANCESCO PASZKOWSKI DESIGN
INTERIOR DESIGN
CASSETTA DESIGN
HULL
STEEL
SUPERSTRUCTURE
ALUMINIUM
ENGINES
2 x MAN 1429 h.p.
TYPE OF DRIVE
SHAFT LINE
ENGINE HOURS
N/A
MAXIMUM SPEED
15 kn
CRUSING SPEED
14 kn
FUEL CONSUMPTION AT ECONOMICAL SPEED
N/A
FUEL
55000 l
GREY WATER
N/A
BLACK WATER
N/A
FRESH WATER
N/A
DISPLACEMENT
400
STABILIZATION SYSTEM
FIN STABILIZERS
Gallery
General Arrangement
Share this page
YOU MAY ALSO LIKE

ENQUIRE NAU

 

Please turn the device over.
This is necessary for the site to display correctly.