30
more photos
Mangusta (Overmarine) / 45.3 m / 2021 / Italy
/ Asking Price €21,500,000
/ Asking Price €21,500,000
Description
Specification
Gallery
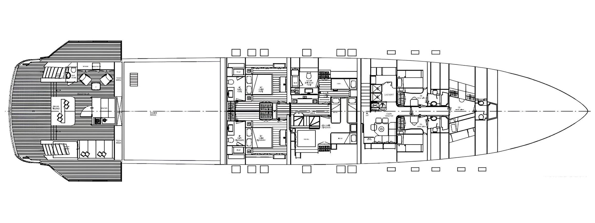
General Arrangement
YOU MAY ALSO LIKE