47
more photos
Mangusta (Overmarine) / 49.9 m / 2025 / France
/ Asking Price €36,000,000
/ Asking Price €36,000,000
Description
Specification
Gallery
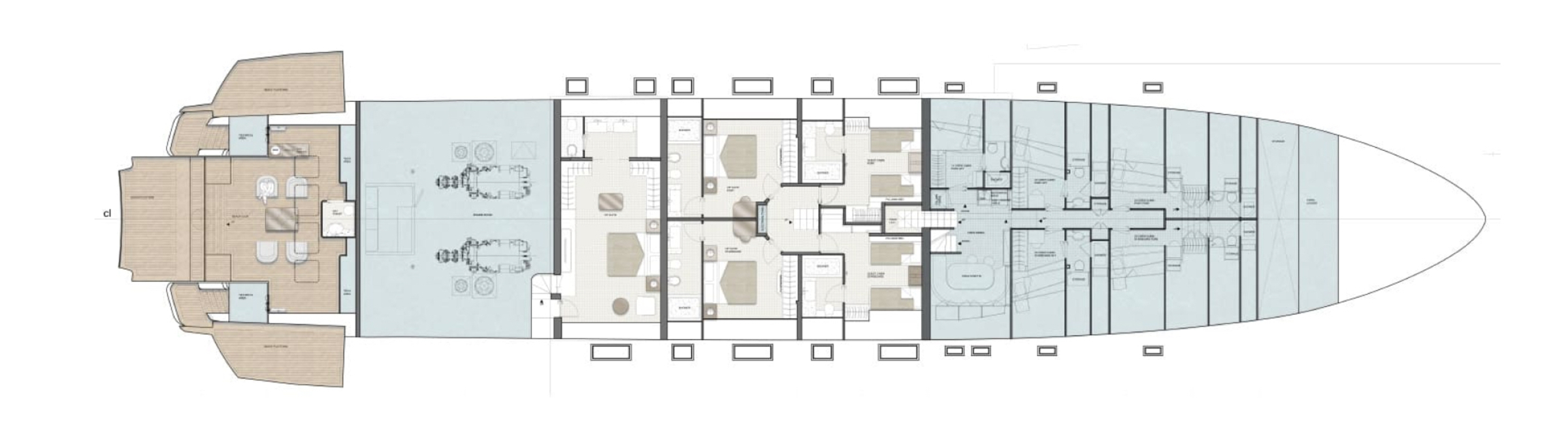
General Arrangement
YOU MAY ALSO LIKE
ENQUIRE NAU
1
/ 47
- Exterior (24)
- Interior (23)