Website version
EN RU
9
more photos

Ocean King DOGE 500

DOGE 500
Ocean King / 49.85 m / 2028 / Italy
/ Price on application
Description

OCEAN KING DOGE 500 — the flagship of the DOGE series by Design aLOT Studio, seamlessly combines the long-range autonomy of an expedition yacht with refined Italian design. This 50-metre vessel, featuring a steel hull and aluminium superstructure, is engineered for transoceanic passages with a range of up to 6,000 nautical miles, offering exceptional seaworthiness, efficiency, and comfort.

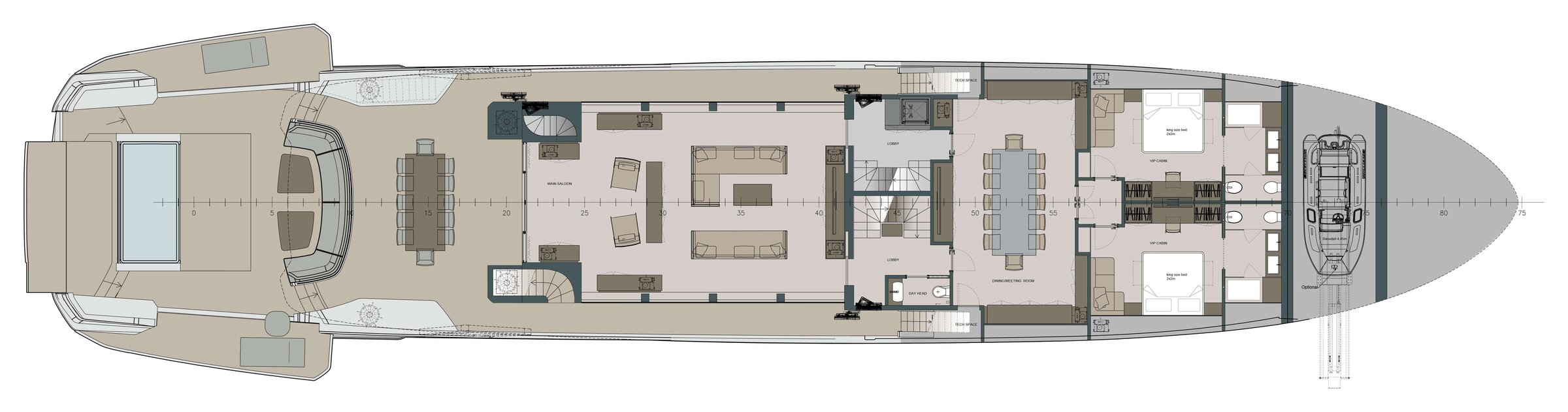
Defined by its bold hull lines, vertical bow, and expansive panoramic glazing, the DOGE 500 presents a striking and contemporary profile. The layout achieves a perfect balance between social and private spaces: the aft deck features two fold-down balconies, the owner’s deck includes a private terrace with a pool, and the crow’s nest lounge provides uninterrupted ocean views.

The interiors reflect a contemporary minimalist style, crafted with natural tones and premium materials for a calm and sophisticated atmosphere. Accommodation is arranged across six cabins, including a spacious full-beam master suite, with flexible configurations available for either private ownership or charter operations.

The engine room is built to commercial standards, with increased headroom, easy access, and an optimized layout for efficient maintenance. All systems are designed for extended voyages, ensuring minimal noise and vibration underway.

Fully customisable in every detail, the OCEAN KING DOGE 500 represents a new generation of explorer yachts — robust, capable, and elegantly styled — created for owners who value comfort, autonomy, and impeccable Italian craftsmanship.

Specification
SHIPYARD , MODEL
Ocean King DOGE 500
DELIVERY AT THE SHIPYARD
2028
LENGTH
49.85 m
WATERLINE LENGTH
42.4 m
HULL CONFIGURATION
DISPLACEMENT
BEAM
9 m
RANGE
4500
DRAFT
2.35 m
GROSS TONNAGE
499 GT
YACHT CLASS
RINA
CABINS
6+5
MASTER CABIN
MAIN DECK
GUESTS
12
BERTHS
12+9
CREW
9
HEADS
7+5
EXTERIOR DESIGN
ALOT DESIGN
INTERIOR DESIGN
OCEAN KING
HULL
STEEL
SUPERSTRUCTURE
ALUMINIUM
ENGINES
2 x MAN D2862 LE489 V12
TYPE OF DRIVE
SHAFT LINE
ENGINE HOURS
N/A
MAXIMUM SPEED
16 kn
CRUSING SPEED
14 kn
FUEL CONSUMPTION AT ECONOMICAL SPEED
N/A
FUEL
65000 l
GREY WATER
9000 l
BLACK WATER
5000 l
FRESH WATER
14000 l
DISPLACEMENT
490
STABILIZATION SYSTEM
FIN STABILIZERS
Gallery
General Arrangement
Share this page
YOU MAY ALSO LIKE

ENQUIRE NAU

 

Please turn the device over.
This is necessary for the site to display correctly.