13
more photos
Sunseeker / 40.84 m / 2027 / United States
/ Price on application
/ Price on application
40.84 m /
2027 /
United States /
Price on application
Description
Specification
Gallery
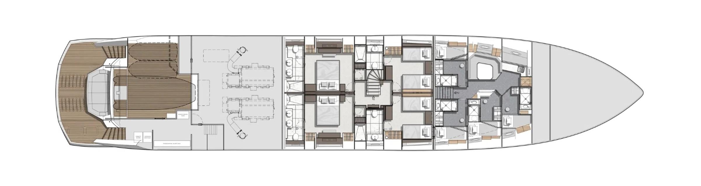
General Arrangement
YOU MAY ALSO LIKE
ENQUIRE NAU
1
/ 13
- Exterior (5)
- Interior (8)