Версия сайта
EN RU
19
еще фото
Tankoa / 49,9 м / 2029 / Италия
/ Цена по запросу
Описание
Новая модель Tankoa S501 быстро привлекла первых клиентов, а уже построенные корпуса подтвердили свои принципы в ходе испытаний и последующей эксплуатации.

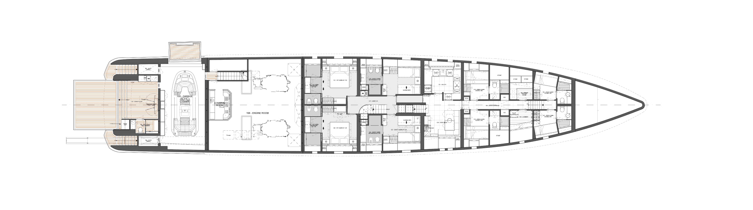
Планировка главной палубы может быть выполнена по индивидуальному заказу в широком диапазоне, включая возможность проектирования каюты владельца в нескольких конфигурациях. Идеальная мореходность, превосходная стабилизация, низкий уровень шума во всех помещениях - вот обязательные характеристики для яхты такого класса, и 501S признана профессионалами превосходной с любой из этих точек зрения. Все вышеперечисленное делает эту яхту одной из самых комфортабельных в категории 500GT.

Концепция позволяет построить яхту как на базе классических силовых установок, так и на основе гибридной схемы, которая сейчас набирает обороты на рынке. Гибридная схема, помимо двух основных дизельных двигателей, включает в себя два генератора высокой мощности и два электродвигателя, расположенных на главных валах с основными пропульсивными системами. Использование этой схемы позволяет использовать несколько режимов раздельного и параллельного включения силовых установок для достижения максимальной эффективности как по расходу топлива, так и по уровню шума и сроку службы агрегатов. Максимальная скорость Tankoa S501 - 17 узлов при расходе топлива менее 450 л/час - выдающийся результат для стальной яхты с длиной корпуса 50 метров.
Спецификация
ВЕРФЬ , МОДЕЛЬ
Tankoa S501
ГОТОВНОСТЬ НА ВЕРФИ
2029
ДЛИНА
49,9 м
ДЛИНА ПО ВАТЕРЛИНИИ
N/A
ТИП КОРПУСА
ВОДОИЗМЕЩАЮЩИЙ
ШИРИНА
8,8 м
ЗАПАС ХОДА
4500
ОСАДКА
2,4 м
ТОННАЖ
499 GT
КЛАСС ЯХТЫ
LLOYDS + MCA
КАЮТ
6+5
МАСТЕР-КАЮТА
ГЛАВНАЯ ПАЛУБA
ГОСТЕЙ
12
СПАЛЬНЫХ МЕСТ
12+7
ЭКИПАЖ
7
САНУЗЛОВ
9+5
ДИЗАЙН ЭКСТЕРЬЕРА
FRANCESCO PASZKOWSKI DESIGN
ДИЗАЙН ИНТЕРЬЕРА
FRANCESCO PASZKOWSKI DESIGN
КОРПУС
АЛЮМИНИЙ
НАДСТРОЙКА
АЛЮМИНИЙ
ДВИГАТЕЛИ
2 x MAN 1380 л.с.
ТИП ПРИВОДА
ВАЛОВАЯ ЛИНИЯ
МОТОЧАСЫ
N/A
МАКСИМАЛЬНАЯ СКОРОСТЬ
17 узл
КРУИЗНАЯ СКОРОСТЬ
14 узл
РАСХОД НА ЭКОНОМИЧЕСКОЙ СКОРОСТИ
~ 450 л/ч
ЗАПАС ТОПЛИВА
65000 л
БАК СЕРЫХ ВОД
N/A
БАК ЧЕРНЫХ ВОД
N/A
ЗАПАС ВОДЫ
N/A
ВОДОИЗМЕЩЕНИЕ
380
СИСТЕМА СТАБИЛИЗАЦИИ
ПЛАВНИКОВЫЕ СТАБИЛИЗАТОРЫ
Галерея
Планы палуб
Поделиться этой страницей
Вам также могут понравиться

Свяжитесь с нами

 

Пожалуйста, переверните устройство.
Это необходимо для корректного отображения сайта.