
Sold




23
more photos
Tankoa / 49.9 m / 2022 / Italy
/ Price on application
/ Price on application
49.9 m /
2022 /
Italy /
Price on application
Description

Specification
Key features

Lloyd's Class
Hybrid Propulsion approved by Lloyd's Class and built to commercial standards.

Exceptional deck spaces
Exceptional deck spaces split between a fantastic aft-deck, large fold-down beach club and generous sundeck.

All aluminium construction
All aluminium construction, KINDA epitomises Italian yacht design and styling.
Gallery
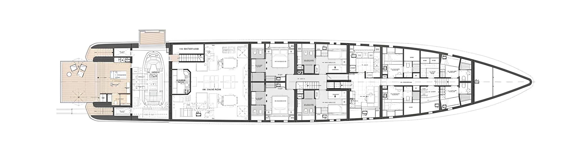
General Arrangement










YOU MAY ALSO LIKE

GTX116
Shipyard
Pershing
Length
35.33 m
Built
2027
Location
Italy
Asking Price
Price on application

LOGICA 59
Shipyard
Logica Yachts
Length
59 m
Built
2027
Location
Italy
Asking Price
Price on application

BENETTI 50М
Shipyard
Benetti
Length
49.8 m
Built
2019
Location
Italy
Asking Price
Price on application